Te Huur 3 Kamer Appartement Nassaustraat In Tilburg | selecthuur.nl
Dutch English

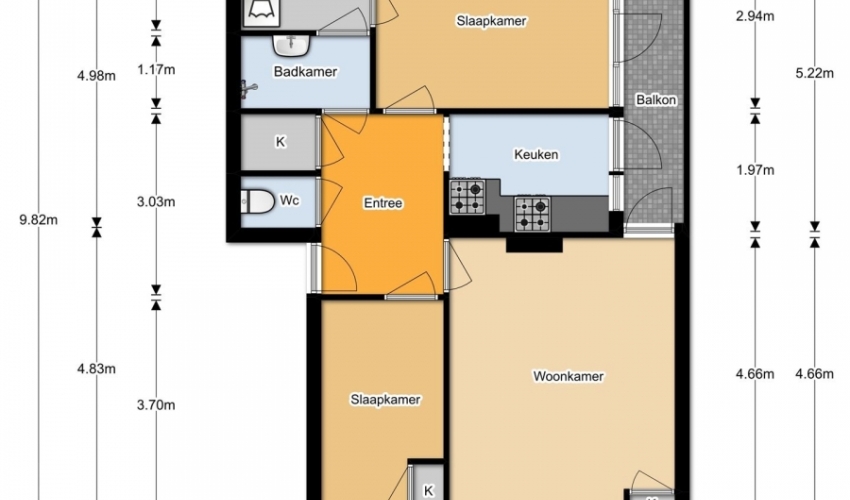
Te Huur 3 Kamer Appartement Nassaustraat In Tilburg

Tilburg
Nassaustraat
Huurprijs: 
€ 810,- p/m
G/W/L: 
Exclusief G/W/L
Soort woning: 
Appartement
Woonoppervlakte: 
59 m²
Aantal kamers: 
3
Aantal slaapkamers: 
2
Beschikbaar per: 
26-1-2026
Selectiedatum: 
19-1-2026
Bezichtiging vanaf: 
21-1-2026

Object: Direct bij de eigenaar
Huurtermijn: Onbepaalde termijn
Oplevering: Zie foto
Inkomen eis: Nee
Garantiestelling mogelijk: Nee
Borg: 1 Maand
Bemiddeling kosten: Nee
Woningdelers toegestaan: Nee
Huisdieren toegestaan: Afhankelijk van de Eigenaar
Huurtoeslag grens: Ja
Geschikt voor studenten: Afhankelijk van de Eigenaar

Is deze woning niet meer beschikbaar of al verhuurd? Laat het ons dan weten!

SCHRIJF JE VANDAAG NOG IN

EN VIND DE WONING VAN JE DROMEN!

 

Wij zijn een groot Nederlands platform gespecialiseerd in huurwoningen , kamers en studio's.

Wij bieden over heel Nederland een aantrekkelijk aanbod aan van directe verhuurders en/of makelaars waar u direct mee in contact kunt komen, dat is erg fijn voor u als woningzoekende. Wij leggen u graag persoonlijk uit hoe onze website werkt in een telefoongesprek. U kunt daarvoor contact opnemen met 020-2442947. Let er wel op dat een bezichtiging aanvragen telefonisch niet mogelijk is.

 

 

Vind vandaag nog uw droomwoning!

Aantrekkelijke tarieven
Geen extra kosten
Direct bij de eigenaar
Resultaatgericht
Onbeperkt reageren op het gehele aanbod
Premium al vanaf €24,95

U betaalt éénmalig de inschrijfkosten van het gewenste pakket.