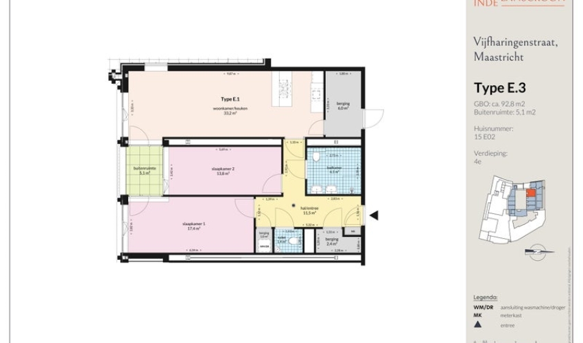
Te huur Appartement Kleine Staat in Maastricht
** Per direct beschikbaar: Royale 3- en 4-kamerappartementen | Inde Lanscroon Centrum Maastricht ** Interesse? Meld je direct aan via "Neem contact op". In het hart van Maastricht ontstaat een geweldige nieuwe woonplek. Ben je een geboren of getogen Limburger, of ben je regelmatig in de stad op bezoek? Dit is een locatie die iedereen kent. Vroeger winkelden hier de bezoekers van V&D en straks kun je hier wonen. Winkelen kan natuurlijk nog stee...... Als je verder klikt kom je bij een nieuwe pagina met uitgebreide informatie over de huurwoning en met de directe contactgegevens van de beheerder









