Te huur Appartement Emmy Andriessestraat 306 in Amsterdam
U HEEFT EEN OBJECTCODE NODIG ALS U ONS BELT. DE CODE IS: 8 6 5 2 9
Bezichtiging
Wij plannen alleen een bezichtiging wanneer u een Qii account heeft aangemaakt en uw gegevens via DigiD aan ons, ter inzage, heeft vrijgegeven (reageer via 'Neem contact op' voor de vervolgstappen). LET OP: Minimaal inkomen van  82.800, - Omschrijving
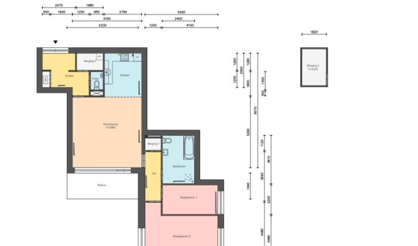
Een ruim 3 kamer appartement gelegen in Amsterdam Oost in de wijk IJburg Indeling?
Gezamenlijke entree met trappenh...... Als je verder klikt kom je bij een nieuwe pagina met uitgebreide informatie over de huurwoning en met de directe contactgegevens van de beheerder









